Двухэтажный дом из газобетонного блока площадью 135 м2

Фундамент

свайно-ростверковый

Стены

газобетонные блоки

Перекрытия

монолитные железобетонные

Крыша

металлочерепица

Фасад

керамический кирпич

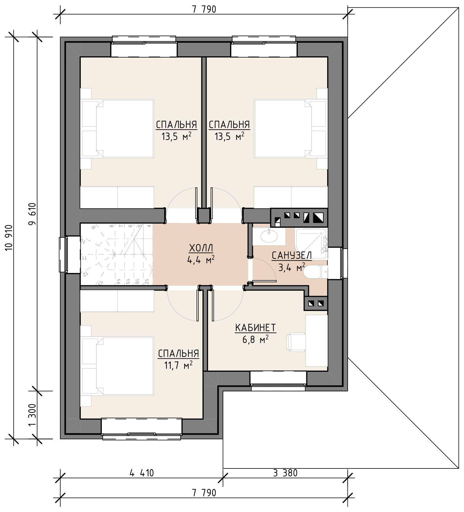
В этом доме 5 спальных комнат, кухня-гостиная и 2 санузла.  Капитальные стены из газобетонных блоков. Фасад дома из керамического кирпича с цветным швом. Дом с вынесенной котельной и большим крытым крыльцом.

Проектируем и строим

Не нашли подходящий дом? Разработаем индивидуальный проект на любой вкус – одноэтажный, двухэтажный, мансардный, с гаражом или плоской кровлей. Либо построим дом по вашему проекту, отправьте его нам на расчет.

Отправьте заявку
Форма заявки
Другие выполненные работы