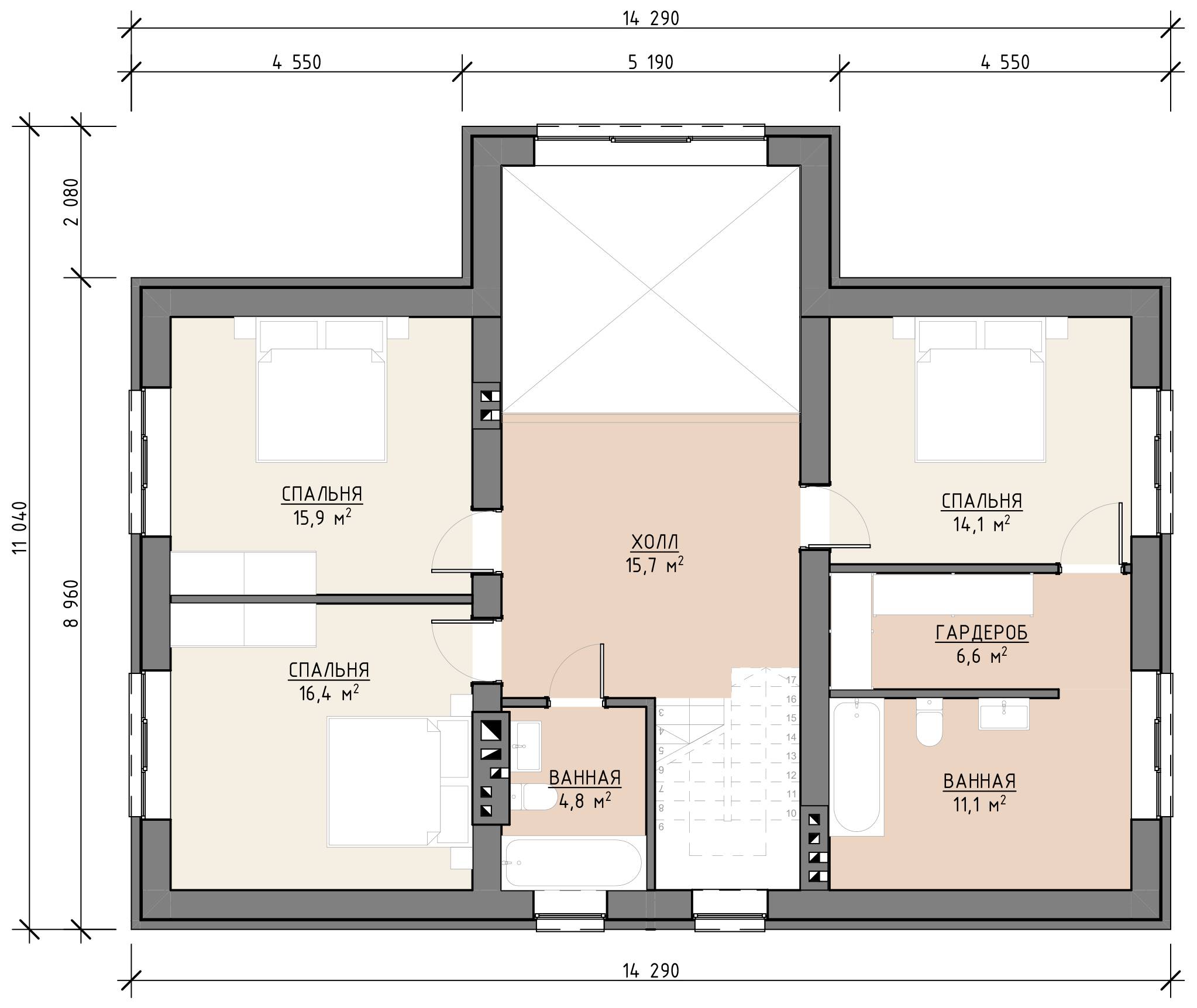
В этом доме 4 спальных комнаты, кухня-столовая, гостиная и 3 санузла. Капитальные стены из газобетонных блоков. Фасад дома из керамического кирпича с черным швом. Дом с цокольным этажом и вторым светом в гостиной.
Планировка
Проектируем
и строим
Не нашли подходящий дом? Разработаем индивидуальный проект на любой вкус – одноэтажный, двухэтажный, мансардный, с гаражом или плоской кровлей. Либо построим дом по вашему проекту, отправьте его нам на расчет.
Отправьте заявку
Другие выполненные работы
Фундамент: свайно-ростверковый
Стены: газобетонные блоки
Перекрытия: монолитные железобетонные
Крыша: мягкая черепица
Фасад: керамический кирпич
Фундамент: монолитная плита
Стены: газобетонные блоки
Перекрытия: монолитные железобетонные
Крыша: мягкая черепица
Фасад: штукатурка
Фундамент: монолитная плита
Стены: газобетонные блоки
Перекрытия: монолитные железобетонные
Крыша: мягкая черепица
Фасад: керамический кирпич
Фундамент: монолитная плита
Стены: газобетонные блоки
Перекрытия: монолитные железобетонные
Крыша: мягкая черепица
Фасад: керамический кирпич
Фундамент: ленточный на жб сваях
Стены: газобетонные блоки
Перекрытия: монолитные железобетонные
Крыша: гибкая черепица
Фасад: клинкерный кирпич
Фундамент: монолитная плита
Стены: газобетонные блоки
Перекрытия: монолитные железобетонные
Крыша: гибкая черепица
Фасад: клинкерный кирпич
Фундамент: ленточный на жб сваях
Стены: теплоблоки
Перекрытия: монолитные железобетонные
Крыша: гибкая черепица
Фасад: теплоблоки
Фундамент: монолитная плита
Стены: газобетонные блоки
Перекрытия: монолитные железобетонные
Крыша: металлочерепица
Фасад: ригельный кирпич + планкен
Фундамент: монолитная плита
Стены: керамические блоки
Перекрытия: монолитные железобетонные
Крыша: гибкая черепица
Фасад: керамический кирпич
Фундамент: монолитная плита
Стены: керамический кирпич
Перекрытия: монолитные железобетонные
Крыша: гибкая черепица
Фасад: керамический кирпич
Фундамент: свайно-ростверковый
Стены: газобетонные блоки
Перекрытия: деревянные
Крыша: гибкая черепица
Фасад: керамический кирпич
Фундамент: ленточный фундамент
Стены: газобетонные блоки
Перекрытия: деревянные
Крыша: металлочерепица
Фасад: клинкерный кирпич
